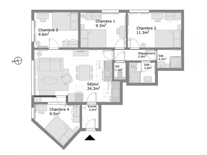
Superficie: 80m²
Colocation Asnières-sur-Seine - 80m2 - 4 chambres - Proche M13 - Grand appartement de 80m2 loi carrez avec 4 chambres - Visite virtuelle disponible, dépôt de dossier digital et rapide - Un loyer charges comprises : eau, internet électricité, chauffage - Eligible aux APL ! L’APPARTEMENT : - Appartement comprenant une entrée, un salon ouvert sur cuisine aménagée équipée, une salle de bains, quatre chambres, une seconde salle de bains, WC. - Un grand salon équipé d'une grande TV ! - Entièrement meublé et équipé (liste complète des équipements sur demande) LOCALISATION ET TRANSPORT : - Proche commerces et transports - Asnières – Gennevilliers – Les Courtilles (M13) | 6 mins, 4 Routes - Zola (Bus 366) | 1 min - Rue Emile Zola, 92600 Asnières-sur-Seine Bail classique de colocation Loyer 690€ par personne + 100€ charges obligatoires (eau, électricité, internet, chauffage) Dépôt de garantie : 1 mois de loyer CC ELIGIBLE APL Ref : 01-447
